Wei-Che Chiang
Architectural Designer

Sky
Seed Bank
INFO:
Studio Project: Technology & Performance
Site Location: Cahokia Reservation Mound, Illinois, USA
Year: 2019
Team of 2 group project
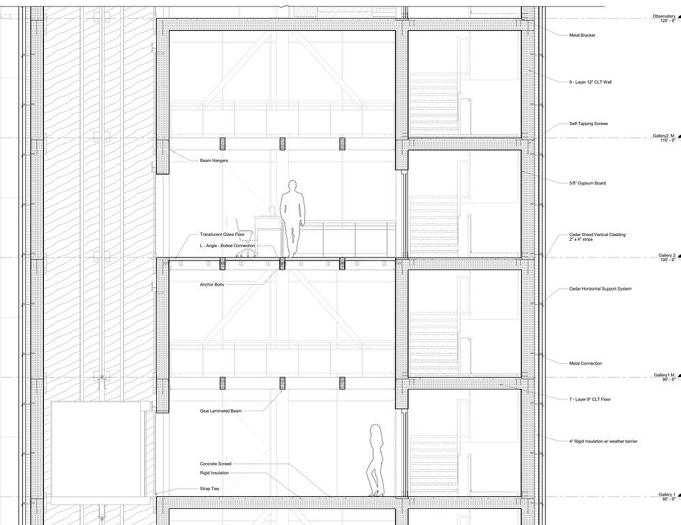
The main idea centers around the integration of ancient Cahokian culture with the representation of the plant life cycle. This concept is reflected in the design, which modernly interprets the theme of "Reaching for the Sky," a significant aspect of Cahokian beliefs. Additionally, it illustrates the transition from traditional to contemporary greenhouse design. The structure's integration into the landscape highlights the Cahokian grid, particularly through the atrium, while also creating a visual narrative of the life cycle of plants. By focusing on vertical construction instead of horizontal, we minimize the built space on site, allowing us to reclaim more land for nature.






Ancient Cahokian Grid
Green House Grid








Sectional Physical Model











